Roof plan detail separated in this AutoCAD file | Download this 2d AutoCAD drawing file.
Description
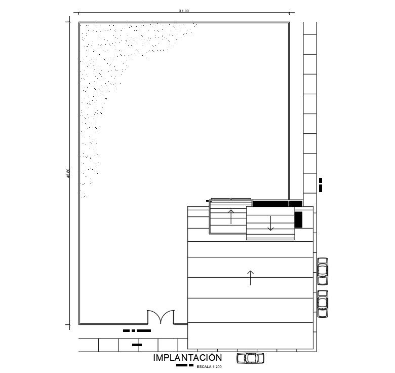
Roof plan detail separated in this AutoCAD file. this file consists of terrace top plan, slop detail, parking detail, services detail, and utilities detail drawing given with detailed specifications. this can be used by architects and engineers. download this 2d AutoCAD drawing file.
Uploaded by:

